SUGOPURA(スゴプラ)
性能とデザインを共生させた
スゴプラのスゴさ
『スゴプラ』の最大の魅力は、企業建築家集団・小堀住研のメンバーが本気で考えた数々のプランです。趣味、仕事、料理や子育て、そして家族の形態など、住まいに求めるものは人それぞれ異なります。
私たちは、このような多様なニーズに応えるため、数多くの個性的でこだわりのあるプランを揃えました。これらのプランは他にはない独自のコンセプトに基づいて生まれており、理想や夢を実現する可能性があると考えています。
私たちの住まいへの強いこだわりとコストメリットは、トレードオフの関係を超えた、前例のない住まいづくりを実現します。あなたが思い描いていた手に入らないと思っていた暮らしと、ここで出会うかもしれません。
快適な住空間を実現する
特許取得「FB-6工法」
家庭用エアコン一台で、
住まいをまるごと新鮮な空気で満たし、
均一な温度で冷暖房
住まいをまるごと新鮮な空気で満たし、
均一な温度で冷暖房
ホクシンハウス独自のFB-6工法。
冬は「壁体内通気層」の中の暖気が床・壁・天井の6面を温めます。
するとその6面から輻射熱が放出され、じんわりと部屋全体を暖めます。
夏にbは冷気が6面を冷やし室内の温度を下げます。
FB-6工法は、暖気や冷気を直接対流させる方法とは異なり、室内に温度ムラが生じたり不快な風も起こりません。
いつでも、どこでも均一な温度を実現する工法となります。
「ここにしかない出合い」がある
小堀住研ならではのラインナップ
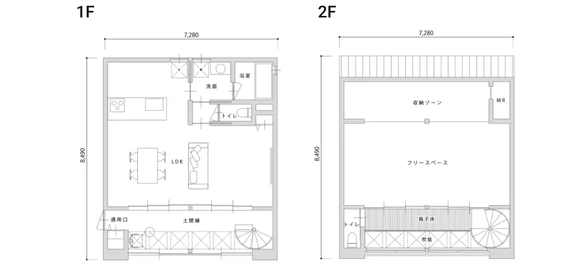
日時計


NOBUYUKI KOYAMA
L.Doma.K


YUKIHIKO NAKAJIMA
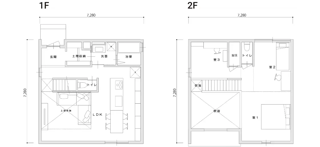
陽だまり


YUKIHIKO NAKAJIMA
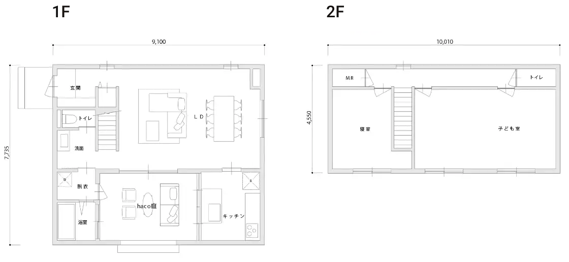
haco庭


NOBUYUKI KOYAMA
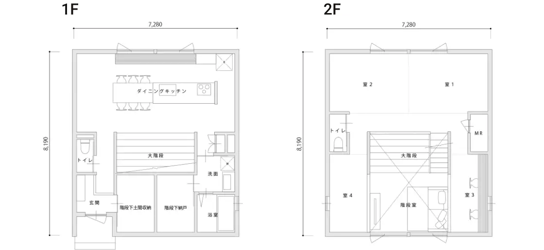
大階段


SOUICHI SATO
小堀住研とは 原点へ。そして本質へ
創業当時から始まり、エスバイエルを経て現在のヤマダホームズに至るまで、70年近く注文住宅の最前線を走り続ける建築家集団です。
世代を受け継ぎ、伝統とノウハウを継承し、常に時代を見据え新しいものづくりに取り組み続けてきました。
住まいとは、暮らす人と土地のポテンシャルを最大限に引き出すべきもの。わたしたちが目指すのは、お客様の言葉から本質を感じとり、美と機能を極めた空間へと昇華させること。理想を超え、感動を呼ぶ、それが小堀住研の住まいづくりです。


